3
$712,695 Sale
Listed 4 hours ago
61 HARMONY Way
· 3
· 3
· 2
· 1500-2000
Listing History
Buy/Sell/Terminated/Expired listing history for 61 HARMONY Way
Key Facts
Key facts for 61 HARMONY Way
Property Type
Townhome, 2-Storey
Parking
Attached 1 garage, 2 parking
MLS #
X12462300
Size
1500-2000 sqft
Basement
Unfinished,Full
Listed on
2025-10-14
Lot size
20 x 92.72
Tax
$1 /yr
Days on Market
1
Approximate Age
New
Maintenance Fee
-
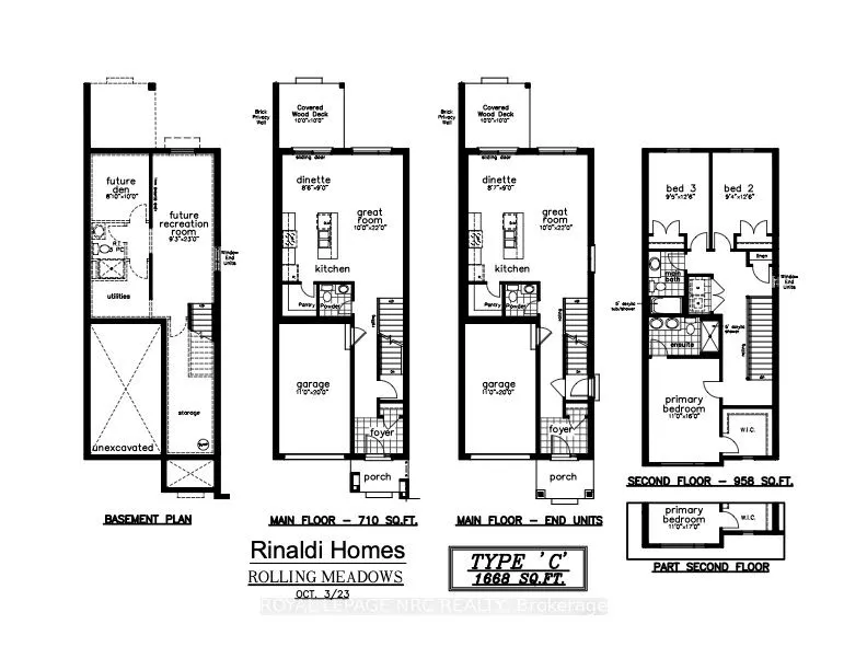
Description
Spacious 1668 sq ft new two-storey interior unit freehold townhome. Now under construction in the Rolling Meadows masterplanned community. Features 9 foot main floor ceiling height, 3 bedrooms, 2.5 bath and 2 nd floor laundry with Samsung frontloading white washer & dryer. Kitchen features 37 ta...ll upper cabinets, soft close cabinet doors & drawers, crown moulding,valence trim, island, walk-in pantry, stainless steel chimney hood, ceramic tile backsplash, Samsung stainless steel fridge, stove,dishwasher and 4 pot lights. Smooth drywalled ceiling throughout, 12x24 tile flooring, 6 wide plan engineered hardwoodflooring in the main floor hall/kitchen/great room. Spacious primary bedroom with large walk-in closet and ensuite with doublesinks and 5 acrylic shower. Unfinished basement with plenty of room for future rec-room, den. Includes 3pce rough-in forfuture basement bathroom, one 47x36 egress basement window. Central air, tankless water heater, Eco-bee programmablethermostat, automatic garage door opener, 10x10 pressure treated wood rear covered rear deck and interlocking brickdriveway. Only a short drive from all amenities including copious restaurants, shopping, Niagara on the Lake & one of the 7wonders of the world Niagara Falls. Easy access to the QEW. Listing price is based on the builders discounted pricing. As low as 2.99% mortgage financing is available - See sales representative for full details. Buyers agree to accept all builder selected interior & exterior finishes. Built by national award winning builder Rinaldi Homes.
Similar Properties (No results)
Courtesy of: ROYAL LEPAGE NRC REALTY